Neubau Hort | Friesack

Kinderspiel

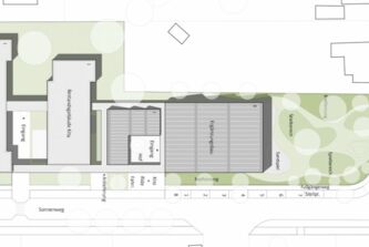
Die Freianlagen schließen mit einer Terrasse an den Neubau an. Das Grundstück wird von Rasen- und Vegetationsflächen umschlossen. Frei modellierte Spielflächen bestimmen die werden altersgerecht angeboten. Im Norden werden die Freianlagen von einem hölzernen Gerätehaus mit integrierter Außentoillette begrenzt. Kleinere und größere Baumpflanzungen spenden Schatten und ermöglichen die notwendige Intimität.

  • Nichtoffener Realisierungwettbewerb | 2020
  • Auslober: Stadt Friesack
  • Architekten: kleyer.koblitz.letzel.freivogel.gesellschaft von architekten mbH, Berlin
  • 2. Preis

Zurück zur Newsübersicht

KUULA Landschaftsarchitekten
Kusserow und Uphaus GbR
Linienstraße 52
10119 Berlin

Telefon +49 30 71535210
E-Mail: mail@kuula.de