Zille-Grundschule | Berlin

Machbarkeitsstudie

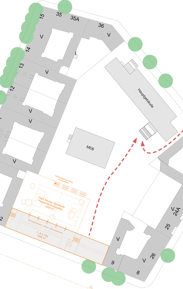
Durch die steigende Zahl der Grundschüler war es nötig geworden, auf dem Grundstück der Zille-Grundschule ein MEB (Modularer Ergänzungsbau) zu errichten. Die steigenden Schülerzahlen bedingen eine Erhöhung des Raumprogramms insgesamt, sowohl architektonisch, als auch im Freiraum.

winkelmüller.architekten aus Berlin wurden zusammen mit KUULA damit beauftragt, den Mehrbedarf zu ermitteln und Varianten herauszuarbeiten, wie sich dieser Mehrbedarf umsetzen lassen könnte.

  • Machbarkeitsstudie | 2016
  • Auftraggeber: Bezirksamt Friedrichshain-Kreuzberg, Berlin
  • Architekten: winkelmüller architekten, Berlin
  • Größe: ca. 1 ha

Zurück zur Newsübersicht

KUULA Landschaftsarchitekten
Kusserow und Uphaus GbR
Linienstraße 52
10119 Berlin

Telefon +49 30 71535210
E-Mail: mail@kuula.de